38 Boutot Lane Grand-Sault/grand Falls, New Brunswick E3Z 0C6

3 Bedroom 2 Bathroom 2,792 ft2
Bungalow Heat Pump Baseboard Heaters, Heat Pump, Stove Acreage

$499,000

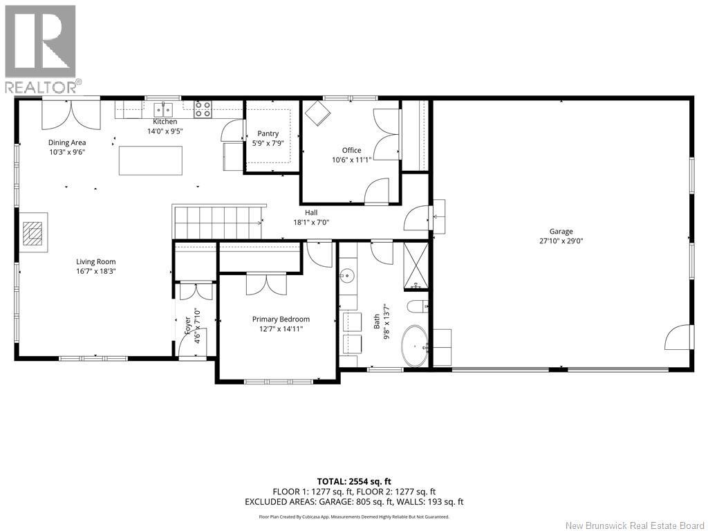
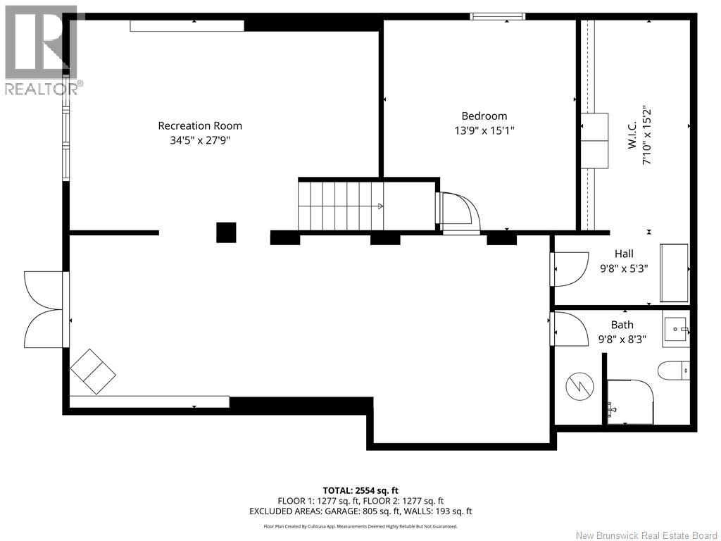
Beautiful Country Bungalow on Over 13 Acres Just Minutes from Grand Falls! Experience peaceful country living with this stunning bungalow situated on over 13 acres of land, only a 10-minute drive to Grand Falls and all its amenities. This home offers the perfect blend of privacy, space, and modern comfort. The property is enhanced by Boutot Brook gently passing through, adding to its peaceful and picturesque setting. Step inside to a bright, open-concept main floor featuring large windows that flood the space with natural light. The spacious living room seamlessly connects to the modern kitchen, complete with a 5'8"" x 7'11"" walk-in pantryperfect for all your storage needs. Also on the main level, youll find a primary bedroom, an office, a 4-piece bathroom with convenient main-floor laundry. Enjoy the outdoors on the covered deck, complete with beautiful wood accent, perfect for relaxing or entertaining while taking in the peaceful surroundings. The fully finished walk-out basement offers even more living space with a large family room, hobby room, bright natural lighting, a 3-piece bathroom, and a spacious bedroom. Theres also a large storage area, providing plenty of room to stay organized. With its combination of land, privacy, and proximity to town, this property offers the best of both worlds country charm and modern convenience. (id:50541)

Property Details

MLS® Number NB129297
Property Type Single Family
Equipment Type None
Features Balcony/deck/patio
Rental Equipment Type None
Structure Shed

Building

Bathroom Total 2
Bedrooms Above Ground 2
Bedrooms Below Ground 1
Bedrooms Total 3
Architectural Style Bungalow
Constructed Date 2019
Cooling Type Heat Pump
Exterior Finish Vinyl
Flooring Type Laminate
Foundation Type Concrete
Heating Fuel Wood
Heating Type Baseboard Heaters, Heat Pump, Stove
Stories Total 1
Size Interior 2,792 Ft2
Total Finished Area 2792 Sqft
Type House
Utility Water Drilled Well, Well

Parking

Attached Garage
Garage
Garage

Land

Access Type Year-round Access, Public Road
Acreage Yes
Size Irregular 13.269
Size Total 13.269 Ac
Size Total Text 13.269 Ac

Rooms

Level Type Dimensions
Basement Storage 19'9'' x 8'9''
Basement 3pc Bathroom 9'6'' x 8'4''
Basement Bedroom 14'4'' x 14'1''
Basement Family Room 34'2'' x 12'9''
Basement Hobby Room 22'6'' x 15'7''
Main Level Foyer 16'9'' x 3'7''
Main Level 4pc Bathroom 14'1'' x 9'6''
Main Level Bedroom 11'6'' x 10'4''
Main Level Primary Bedroom 13'2'' x 13'
Main Level Living Room 16'3'' x 14'
Main Level Kitchen/dining Room 25'6'' x 11'4''

https://www.realtor.ca/real-estate/29043146/38-boutot-lane-grand-saultgrand-falls


Lisa Theriault
Salesperson

(506) 479-2996
www.exitrealtyelite.ca/
EXIT Realty Elite
207 Main St
Grand Falls, New Brunswick E3Z 2W1

(506) 473-7004
(506) 473-1004

EXIT Realty Elite
207 Main St
Grand Falls, New Brunswick E3Z 2W1

(506) 473-7004
(506) 473-1004

Contact Us

Contact us for more information


Generating Captcha