161 Ernest Dieppe, New Brunswick E1A 4T3
$299,900
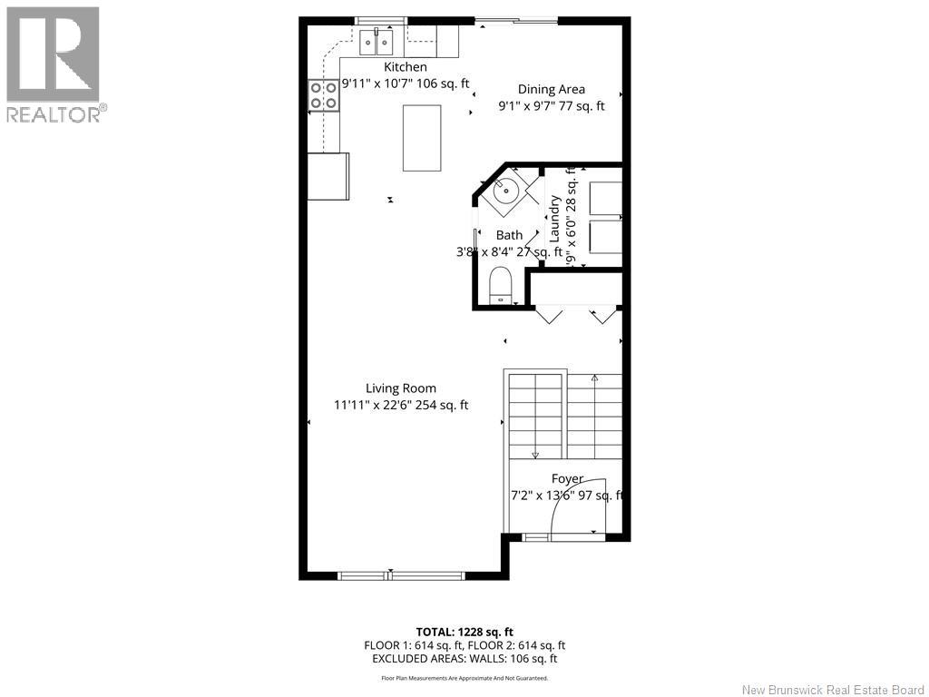
Welcome to 161 Ernest, a stunning split-entry townhouse perfectly situated in a quiet, family-friendly neighborhood just minutes from Champlain Street. This middle-unit gem offers the perfect blend of style, comfort, and functionalityideal for families, professionals, or anyone seeking modern living in a prime location. Step inside and fall in love with the bright, open-concept design, where every detail has been carefully crafted. The high-end kitchen features sleek white cabinetry, stainless steel appliances, a large center island, and plenty of storageperfect for cooking and entertaining. The kitchen flows seamlessly into the spacious dining and living area, highlighted by a gorgeous accent wall and oversized windows that flood the space with natural light. Step through the patio doors to enjoy your private outdoor oasisa beautiful deck ideal for morning coffee, BBQs, or simply relaxing after a long day. The main level also includes a convenient half bath with laundry, while a mini-split heat pump ensures year-round comfort. On the lower level, youll find a generous primary bedroom with ample closet space, two additional bedrooms, a modern full bathroom, and a storage area. Each room has been designed with comfort and functionality in mind, offering plenty of natural light and a clean, modern aesthetic. Located close to walking trails, bus routes, shopping, schools, and all the fantastic amenities Dieppe has to offer, this home truly has it all. (id:50541)
Property Details
| MLS® Number | NB128902 |
| Property Type | Single Family |
| Equipment Type | Water Heater |
| Rental Equipment Type | Water Heater |
Building
| Bathroom Total | 2 |
| Bedrooms Below Ground | 3 |
| Bedrooms Total | 3 |
| Architectural Style | 2 Level |
| Constructed Date | 2023 |
| Cooling Type | Heat Pump |
| Exterior Finish | Vinyl |
| Flooring Type | Ceramic |
| Foundation Type | Concrete |
| Half Bath Total | 1 |
| Heating Fuel | Electric |
| Heating Type | Baseboard Heaters, Heat Pump |
| Size Interior | 1,330 Ft2 |
| Total Finished Area | 1330 Sqft |
| Type | House |
| Utility Water | Municipal Water |
Land
| Access Type | Year-round Access, Public Road |
| Acreage | No |
| Sewer | Municipal Sewage System |
| Size Irregular | 226 |
| Size Total | 226 M2 |
| Size Total Text | 226 M2 |
Rooms
| Level | Type | Length | Width | Dimensions |
|---|---|---|---|---|
| Basement | 4pc Bathroom | 8'0'' x 4'8'' | ||
| Basement | Bedroom | 8'4'' x 12'2'' | ||
| Basement | Bedroom | 10'4'' x 12'2'' | ||
| Basement | Primary Bedroom | 11'11'' x 13'7'' | ||
| Main Level | Foyer | 7'2'' x 13'6'' | ||
| Main Level | Laundry Room | 4'9'' x 6'0'' | ||
| Main Level | 2pc Bathroom | 3'8'' x 8'4'' | ||
| Main Level | Dining Room | 9'1'' x 9'7'' | ||
| Main Level | Kitchen | 9'11'' x 10'7'' | ||
| Main Level | Living Room | 11'11'' x 22'6'' |
https://www.realtor.ca/real-estate/29023856/161-ernest-dieppe
260 Champlain St
Dieppe, New Brunswick E1A 1P3
(506) 382-3948
(506) 382-3946
www.exitmoncton.ca/
https://www.facebook.com/ExitMoncton/
Contact Us
Contact us for more information




























