206-208 Maccoun Street Moncton, New Brunswick E1A 0Y6
$544,900
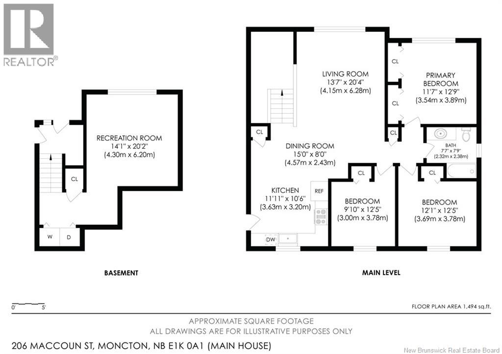
2022 BUILD! 2 BED IN-LAW SUITE! SEPARATE METERS! MINI SPLIT! WARRANTY REMAINING! Live in one unit and rent the other to help with the mortgage, or rent out both to generate a great rental income. Welcome to this modern home featuring a beautiful main unit plus a bright 2 bedroom in-law suite with its own entrance, separate meter, stainless steel appliances, laundry, and friendly tenants paying $1450 (NB Power not included). The main floor offers a huge living room, big modern kitchen with stainless steel appliances, pantry closet, mini split, 3 bedrooms, full bath, and access to a spacious back yard with deck, plus a single car garage. The lower level for the main also includes a large family room and laundry. The in-law suite boasts large windows, full kitchen with double sink and dishwasher, 2 bedrooms, full bath, and its own laundry. Taxes are currently non-owner occupied and will be lower if owner occupied. Floor plans and virtual tour for both units attached. If youre looking for a modern home in a peaceful neighbourhood, this is the one. Contact your realtor today. (id:50541)
Property Details
| MLS® Number | NB130165 |
| Property Type | Multi-family |
Building
| Appliances | Refrigerator, Stove, Washer, Dishwasher, Dryer |
| Cooling Type | Heat Pump |
| Exterior Finish | Vinyl |
| Flooring Type | Laminate, Tile |
| Foundation Type | Concrete |
| Heating Fuel | Electric |
| Heating Type | Baseboard Heaters, Heat Pump |
| Size Interior | 2,330 Ft2 |
| Total Finished Area | 2330 Sqft |
| Type | Duplex |
| Utility Water | Municipal Water |
Land
| Acreage | No |
| Sewer | Municipal Sewage System |
| Size Irregular | 679 |
| Size Total | 679 M2 |
| Size Total Text | 679 M2 |
https://www.realtor.ca/real-estate/29105219/206-208-maccoun-street-moncton
Contact Us
Contact us for more information

















































