560 Main Street Chipman, New Brunswick E4A 2P3
$699,900
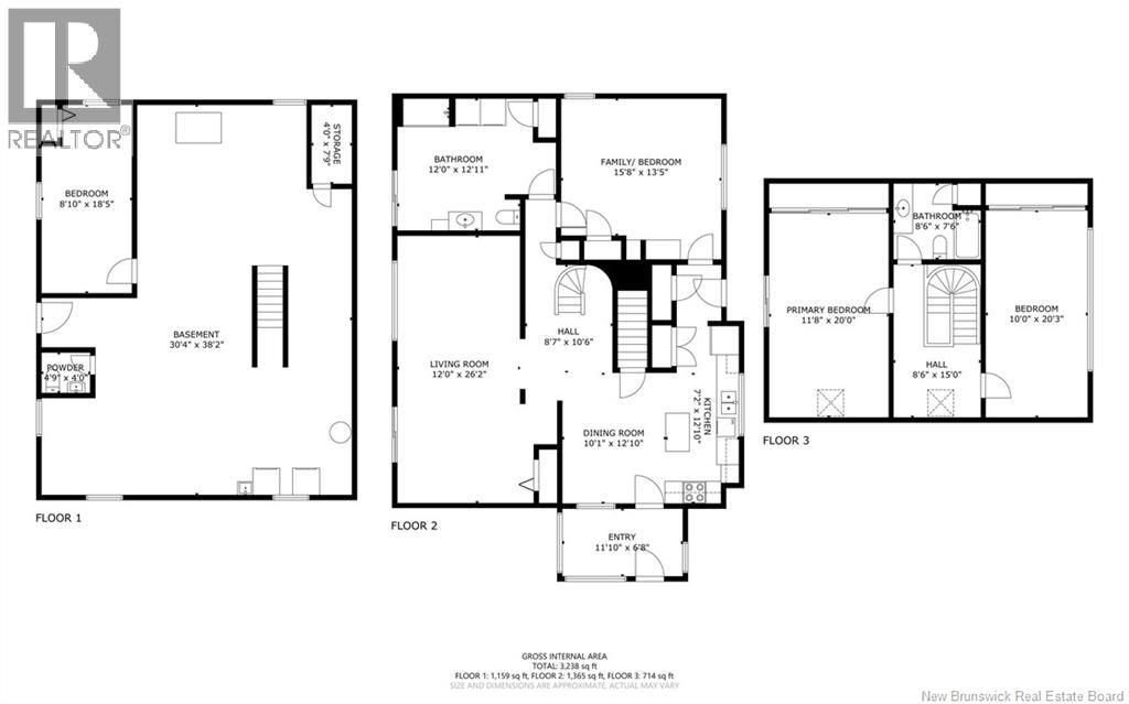
Welcome to your riverfront escape in the Village of Chipman! This charming Chalet-style home sits on 5.7 acres with an impressive 396 feet of Salmon River frontage, offering peace, privacy, and scenic views year-round. Inside, youll find a bright, eat-in kitchen with plenty of cabinets and a spacious islandperfect for family gatherings. The large living room features patio doors leading to the back deck, ideal for relaxing or entertaining while overlooking the water. A main-level bedroom and a large bath/laundry combo with direct deck access add convenience and comfort. Upstairs, there are two generous bedrooms, primary bedroom featuring a skylight and a private balcony overlooking the riverthe perfect spot for your morning coffee. The partially finished basement includes a fourth bedroom, half bath, and additional space for storage or hobbies. This home features a ducted heating/cooling system, is currently on well and septic, and offers the potential to connect to municipal services. Outside, enjoy the expansive property complete with a 40 x 28 detached garage, providing plenty of room for vehicles, tools, or recreational equipment. Whether youre looking for a year-round residence or a peaceful retreat, this stunning riverfront property combines rustic charm, comfort, and exceptional outdoor living. 3D Tour Avialable (id:50541)
Property Details
| MLS® Number | NB129052 |
| Property Type | Single Family |
| Equipment Type | Water Heater |
| Features | Wheelchair Access, Balcony/deck/patio |
| Rental Equipment Type | Water Heater |
| View Type | River View |
| Water Front Type | Waterfront On River |
Building
| Bathroom Total | 3 |
| Bedrooms Above Ground | 3 |
| Bedrooms Below Ground | 1 |
| Bedrooms Total | 4 |
| Architectural Style | Chalet |
| Constructed Date | 1972 |
| Cooling Type | Air Conditioned, Heat Pump |
| Exterior Finish | Vinyl |
| Flooring Type | Carpeted, Wood |
| Foundation Type | Concrete |
| Half Bath Total | 1 |
| Heating Fuel | Electric |
| Heating Type | Baseboard Heaters, Forced Air, Heat Pump |
| Stories Total | 2 |
| Size Interior | 2,275 Ft2 |
| Total Finished Area | 2275 Sqft |
| Utility Water | Well |
Parking
| Detached Garage | |
| Garage |
Land
| Access Type | Year-round Access, Public Road |
| Acreage | Yes |
| Landscape Features | Landscaped |
| Sewer | Septic System |
| Size Irregular | 5.7 |
| Size Total | 5.7 Ac |
| Size Total Text | 5.7 Ac |
Rooms
| Level | Type | Length | Width | Dimensions |
|---|---|---|---|---|
| Second Level | 2pc Bathroom | 8'6'' x 7'6'' | ||
| Second Level | Bedroom | 20'3'' x 10' | ||
| Second Level | Bedroom | 20' x 11'8'' | ||
| Basement | Other | 4'9'' x 4' | ||
| Basement | Storage | 4'10'' x 7'9'' | ||
| Basement | Bedroom | 18'5'' x 8'10'' | ||
| Main Level | 2pc Bathroom | 12'11'' x 12' | ||
| Main Level | Kitchen | 12'10'' x 7'2'' | ||
| Main Level | Dining Room | 12'10'' x 10'1'' | ||
| Main Level | Living Room | 26'2'' x 12' | ||
| Main Level | Bedroom | 15'8'' x 13'5'' |
https://www.realtor.ca/real-estate/29023961/560-main-street-chipman
90 Woodside Lane, Unit 101
Fredericton, New Brunswick E3C 2R9
90 Woodside Lane, Unit 101
Fredericton, New Brunswick E3C 2R9
90 Woodside Lane, Unit 101
Fredericton, New Brunswick E3C 2R9
Contact Us
Contact us for more information


















































