25 Augusta Close, Fredericton NB
Soldd for $455,000
This 2-bedroom garden home at 25 Augusta Close offers a bright and open-concept layout designed for easy living. The spacious main area seamlessly connects the kitchen, dining, and living room, creating an inviting space that’s perfect for both relaxing and entertaining. The primary bedroom features its own private 2-piece ensuite, while the second bedroom is well-suited for guests, family, or a home office. A full main bathroom with convenient laundry adds extra functionality to the layout. The unfinished basement offers ample potential for future development—whether you’d like to add more living space, a hobby room, or utilize it as generous storage. Ideally located close to shopping, schools, and amenities, this home blends comfort, practicality, and potential in one welcoming package.
Book a showing or ask us a question
Interested in this home? Whether you have questions about the property or want to schedule a private showing, we’re here to help! Reach out to learn more, book a tour, or get expert advice on the next steps. Simply fill out the form below, and a member of our team will be in touch soon.
Watch our video tour of 25 Augusta Close
See this home in detail with a full video walkthrough. Explore the layout, features, and finishes as you move through each space. Whether you’re near or far, this video gives you a true sense of the home’s flow and design. Press play to start your tour!
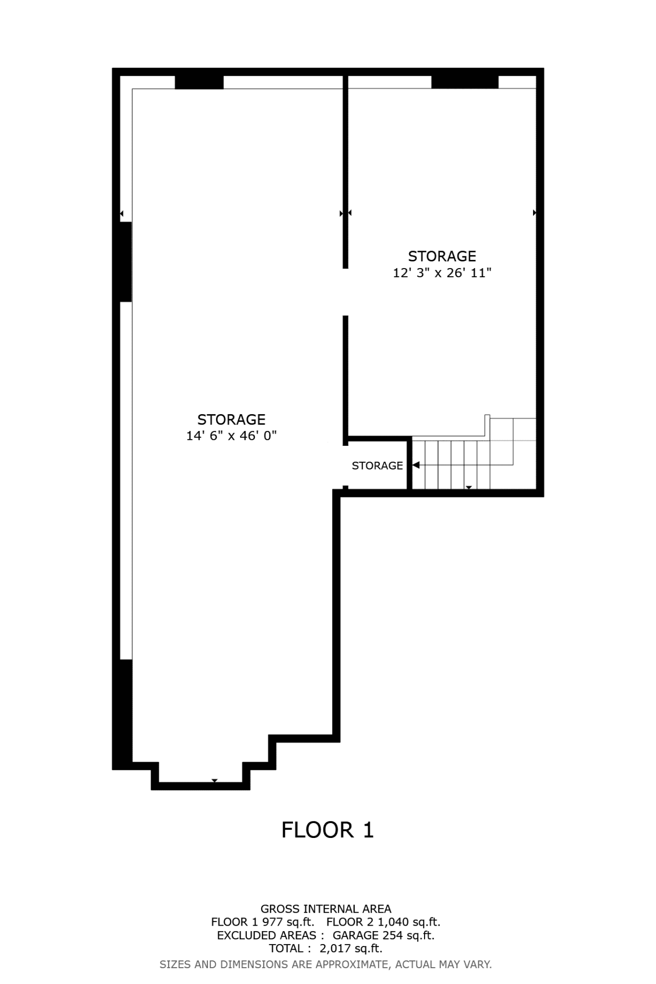
See the detailed floor plan
Get a clear picture of the home’s layout with detailed floor plans. See room sizes, flow, and functionality to help you envision how the space fits your needs. Explore the design and start planning your move!
Main Level

Lower Level

Property Details
Get all the key details about this home at a glance. From room sizes to the number of bedrooms and bathrooms, heating type, and more, everything you need to know is right here. Explore the specs and see if this home is the right fit for you!
Essentials
| Property Style | Garden Home |
| Year Built | 2015 |
| Lot Size | 425 SQ M |
| Above Grade Living Area | 1040 SQ FT |
| Total Living Area | 1040 SQ FT |
| Bedrooms | 2 |
| Bathrooms | 1 Full, 1 Half |
| Property ID Number (PID) | 75513754 |
Interior
| Flooring Types | Ceramic, Wood |
| Heating | Heat Pump Ductless, Electric Baseboard |
| Cooling | Heat Pump Ductless |
| Inclusions | Furniture is negotiable Dishwasher, Dryer, Microwave, Refrigerator, Stove, Washer |
| Foundation | Concrete, Fully, Unfinished |
| Garage | Attached, Single |
Exterior
| Roofing | Asphalt Shingle |
| Exterior Finishes | Brick, Vinyl |
| Driveway | Concrete |
Utilities
| Water Source | Municipal |
| Sewer Type | Municipal |
| Electrical Size & Type | 200 AMP |
| Rental Equipment | Water Heater |
At our real estate brokerage in Fredericton, New Brunswick, Canada, our team of experienced and knowledgeable REALTORS® is dedicated to helping our clients find the perfect property to call home. We specialize in homes for sale in Fredericton and can assist you in finding the right property at the right price.
Fredericton offers a unique blend of natural beauty, cultural attractions, and a strong sense of community, making it a desirable place to live. From charming heritage homes to modern condos and spacious family houses, there’s a wide range of properties available to suit different lifestyles and budgets.
For buyers, we provide comprehensive assistance throughout the entire home-buying process. We’ll guide you through the initial property search, schedule viewings, and offer valuable insights into the local neighbourhoods, schools, amenities, and market trends. Our team has access to an extensive network of industry professionals, including mortgage brokers, home inspectors, and lawyers, ensuring that you have a seamless experience from start to finish.
Sellers can rely on our expertise and innovative marketing strategies to attract qualified buyers and achieve the best possible price for their homes. We understand the importance of effective marketing in today’s competitive real estate market. Our team will create a tailored marketing plan that highlights the unique features and selling points of your property. From professional photography and virtual tours to online and offline advertising, we’ll make sure your listing gets maximum exposure to potential buyers.
Pricing your home correctly is crucial, and our team has a deep understanding of the local market conditions and trends. We’ll provide you with a comprehensive market analysis, taking into account factors such as recent sales, comparable properties, and current demand. Our goal is to help you set the right price that attracts buyers while maximizing your return on investment.
Whether you are looking to buy or sell in Fredericton, our goal is to make your real estate experience as smooth and stress-free as possible, so contact us today and let us help you achieve your real estate goals. There is a reason we were voted #1 Real Estate Agent by Community Votes Fredericton in 2022, 2023, & 2024 & remain in the Three Best Rated Top 3 Real Estate Agents in Fredericton.
Listed with Dave Watt The Right Choice Realty
MLS® #: NB127484
Comments are closed.